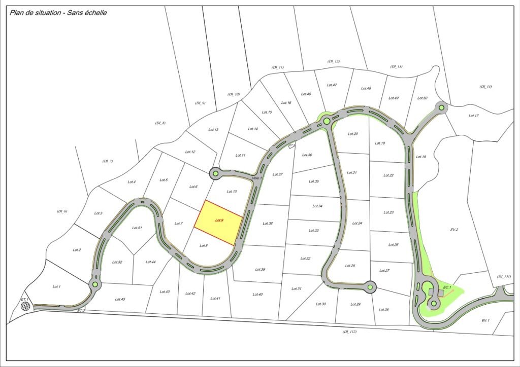
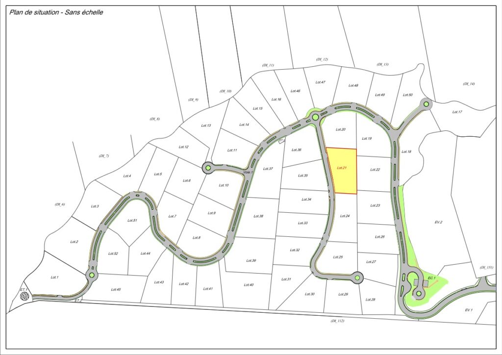
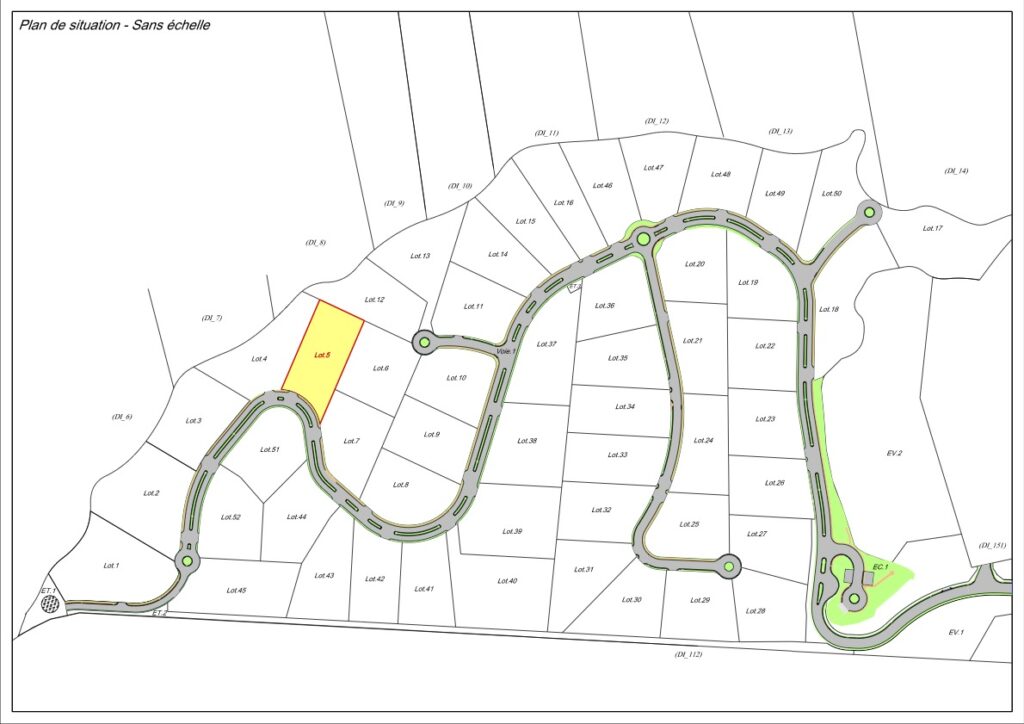
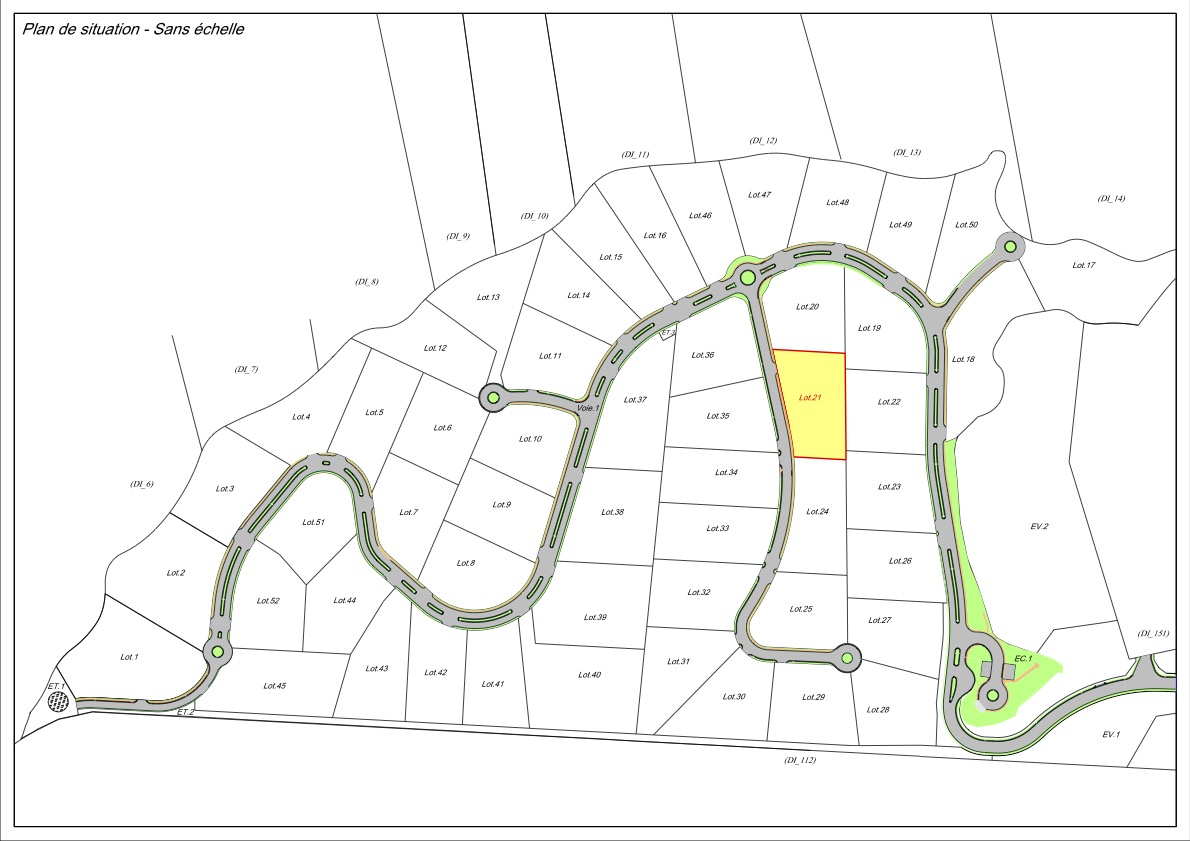
52 parcelles exceptionnelles de 1800 m2 à 3000 m2 !
Eden Hills – Une situation idéale
Situé sur la côte ouest de Tahiti, entre Papara et Taravao, le territoire de Teva I Uta s’étire sur une superficie de 120 km2. Du PK 41,5 au PK 55,4, la commune est bordée par le domaine d’Atimaono à Mataiea et la baie de Teonetea à Papeari.
À proximité de la commune de Taravao, second pôle économique décentralisé de Tahiti, Teva I Uta offre un beau compromis entre ruralité et alme, tout en restant proche d’une ville et de ses commodités.
Beauté des paysages et végétation luxuriante, Teva I Uta est aussi la commune de l’eau. D’ailleurs, Mataiea et Papeari, anciennement appelés Vaiuriri et Vaiari, évoquent clairement cette particularité (« vrai » signifiant « eau » en tahitien). Teva I Uta abrite le seul lac de Polynésie, le lac Vaihiria. Près d’une quinzaine de rivières et ruisseaux traversent son territoire. La source naturelle Vaima et les jardins d’eau de Vaipahi attirent de nombreux visiteurs. Le jardin botanique créé par Harrison Smith en 1919 ou le Musée Gauguin, dédié au célèbre peintre, sont également des lieux incontournables.
Parcelles exceptionnelles de 1800 m2 à 3000 m2
Maisons clé en main - forte rentabilité - spécial investisseur
Points d’intérêts à proximité
- Le golf de Atimaono
- Sport de surf Taharu’u
- Proximité de la commune de Taravao, second pôle économique décentralisé de Tahiti (restaurants, centre commercial …)
- Les jardins d’eau de Vaipahi
- La source Vaima
- Le lac Vaihiria
- Le Jardin Botanique
- Le musée Gauguin
- Le toboggan naturel de Vaiumete
- Proximité de Teahupoo (spot mythique de surf)
52 parcelles exceptionnelles de 1800 m2 à 3000 m2
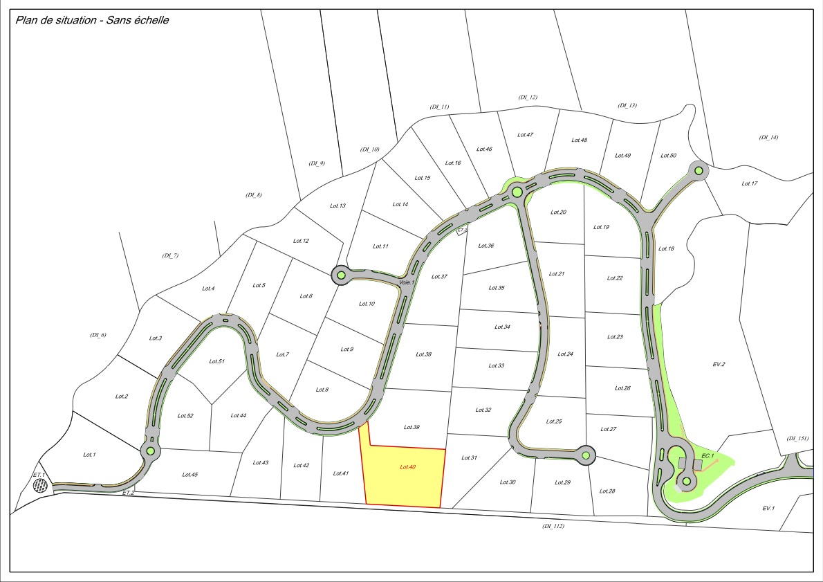
Ce nouveau projet d’Imagine Promotion, se développe autour d’un concept jamais réalisé sur le territoire : un lotissement haut de gamme, sécurisé, paysagé, au calme, dans un site exceptionnel suur la commune de Papeari.
Destiné à des résidences principales ou de villégiature sur un site préservé avec une vue imprenable sur le lagon, la presqu’île et montagnes environnantes, à proximité du golf et activités nautiques.
Un lotissement de haut standing
- Accès sécurisé avec double portail
- Voirie principale avec terre-plein central paysagé
- Point de vue
- Local de tri des déchets
- Gardien
Spécificités techniques
- Voirie principale d'une emprise de 11 m avec deux bandes roulantes séparées par un terre-plein central paysagé
- Ronds-points paysagés aux intersections des voiries secondaires pour ralentir la circulation
- Accès internet via fibre optique
- Entrées des lots en retrait et élargies pour accueillir les places de stationnement extérieures temporaires
- Éclairage public solaire le long des voiries
- Compteurs individuels par lot
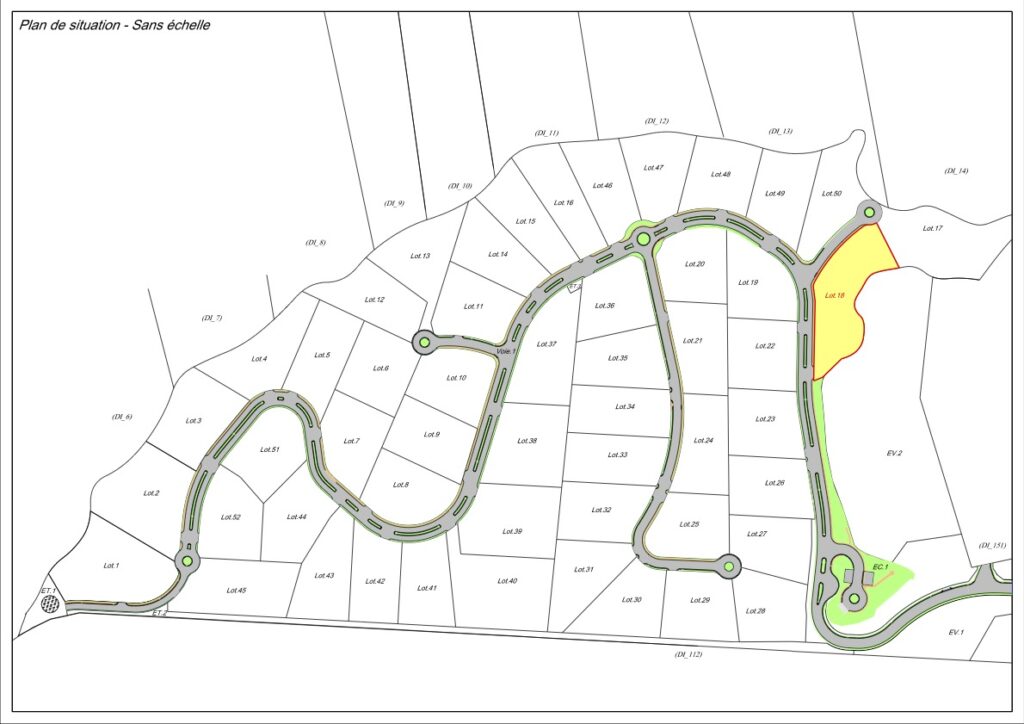
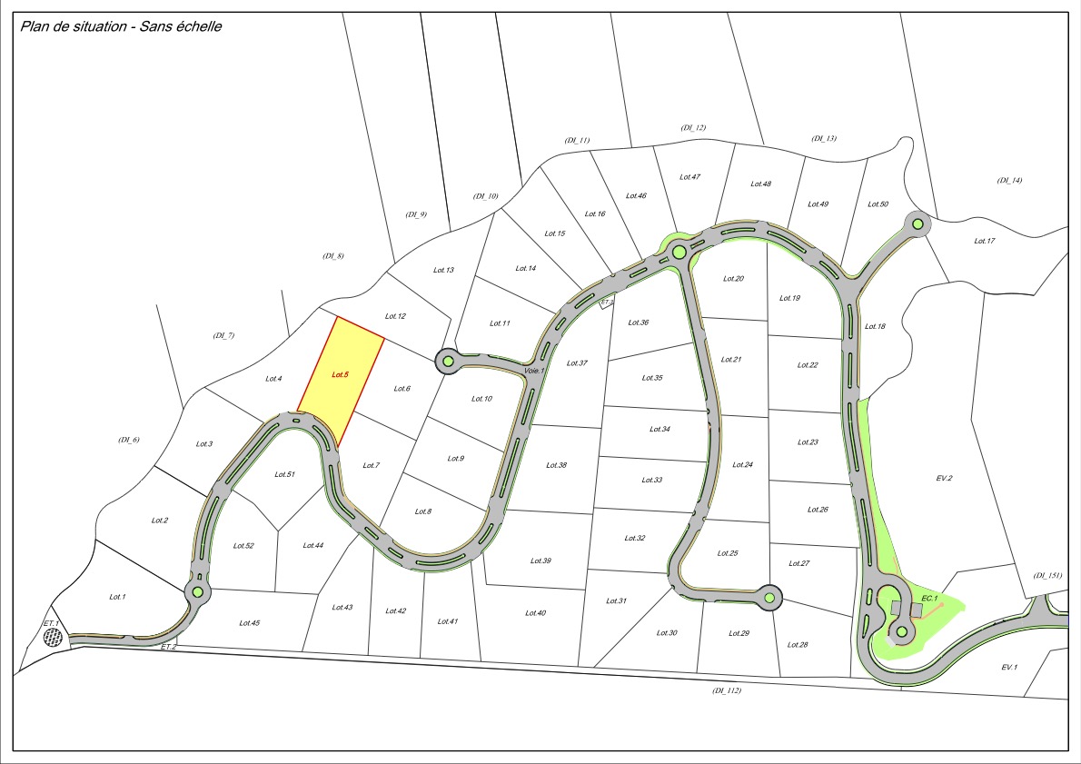
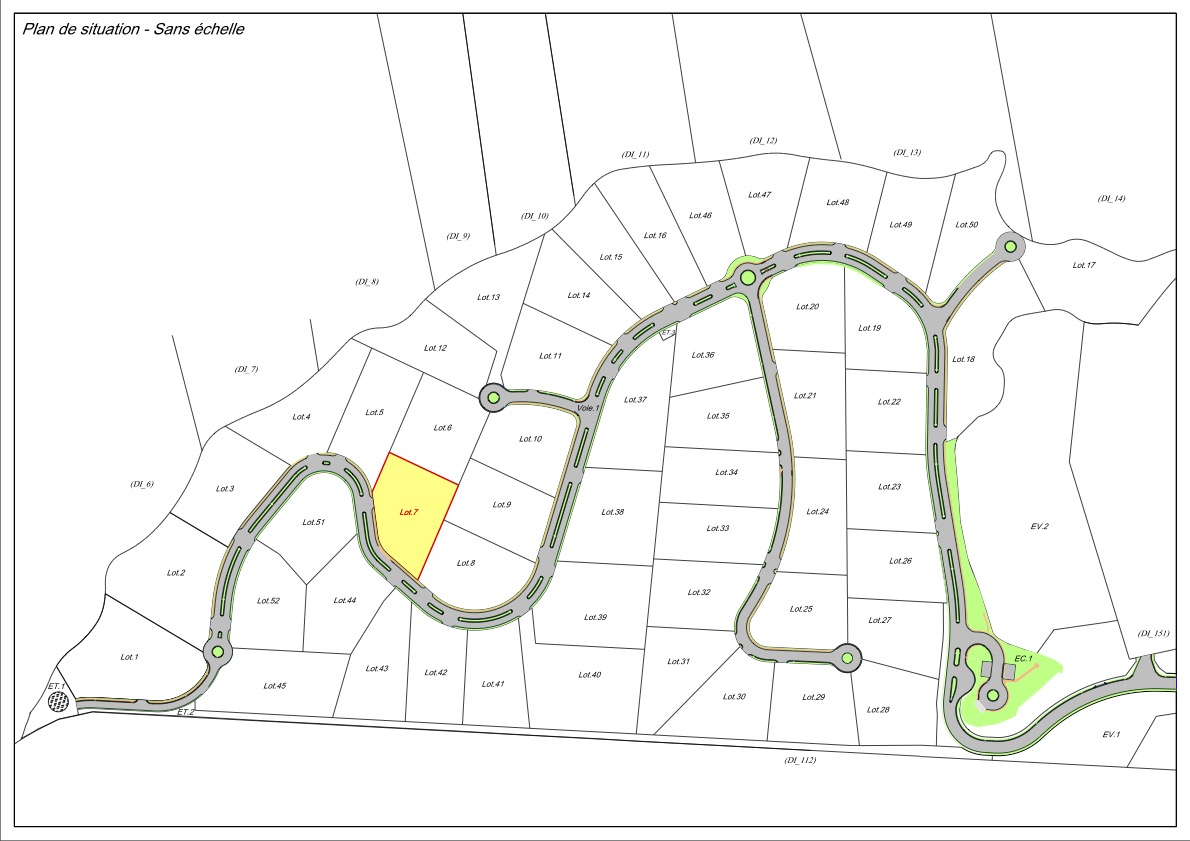
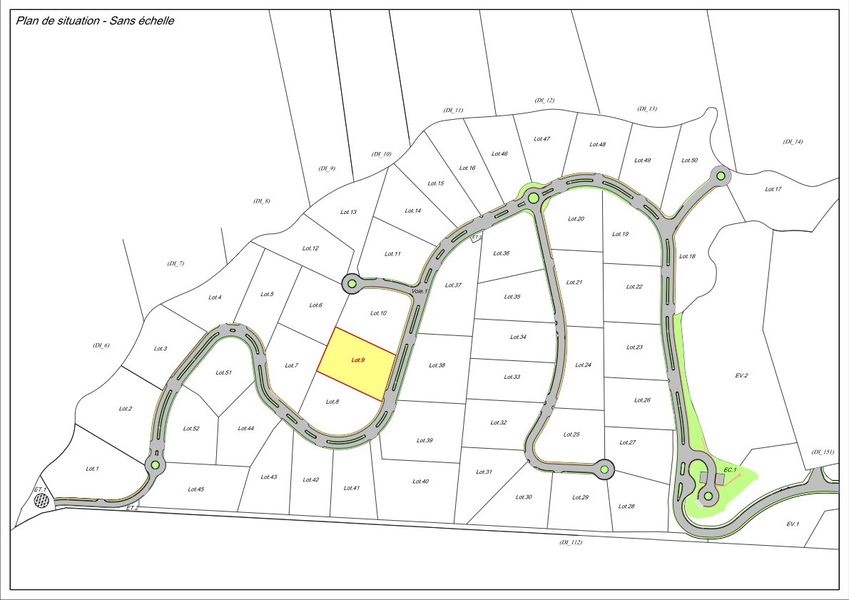
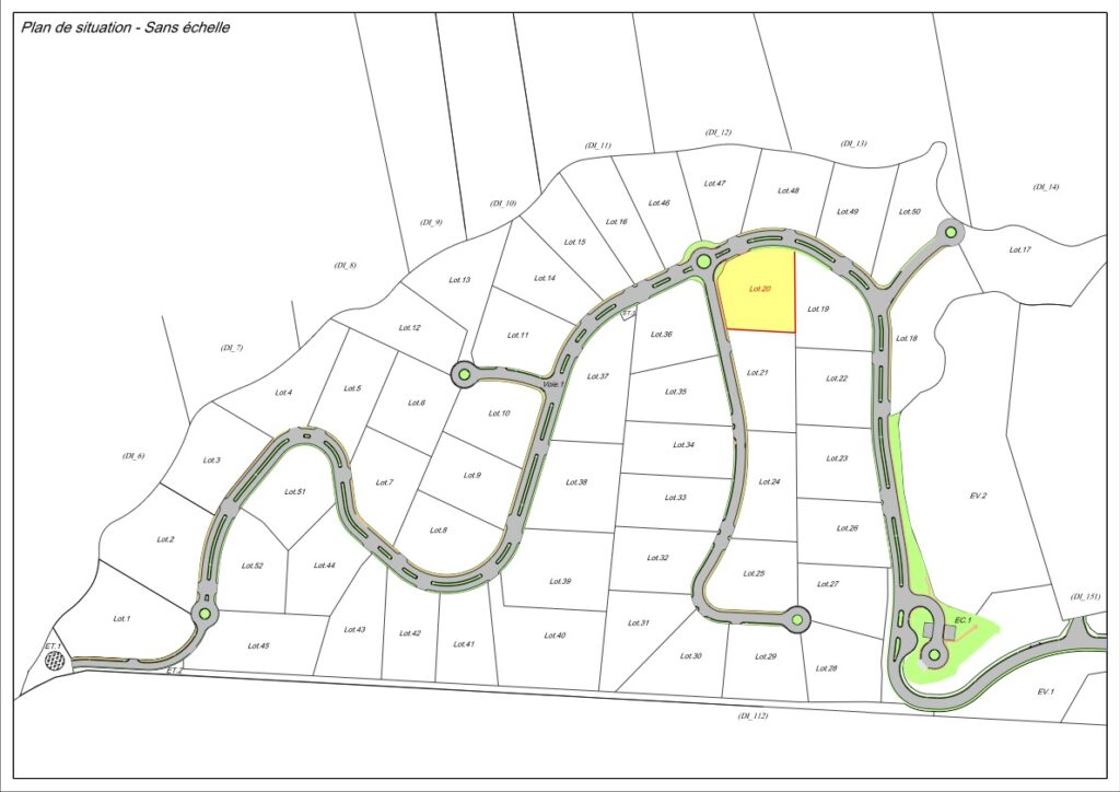
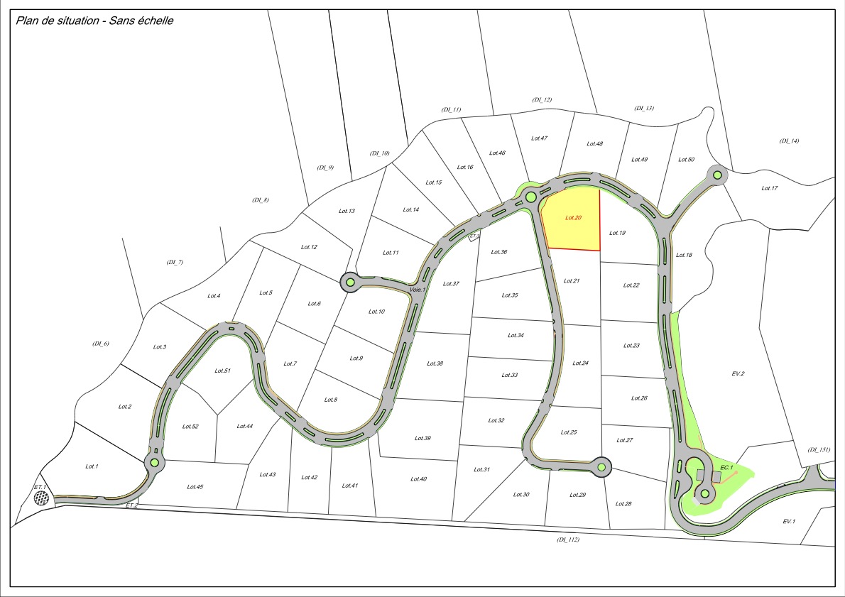
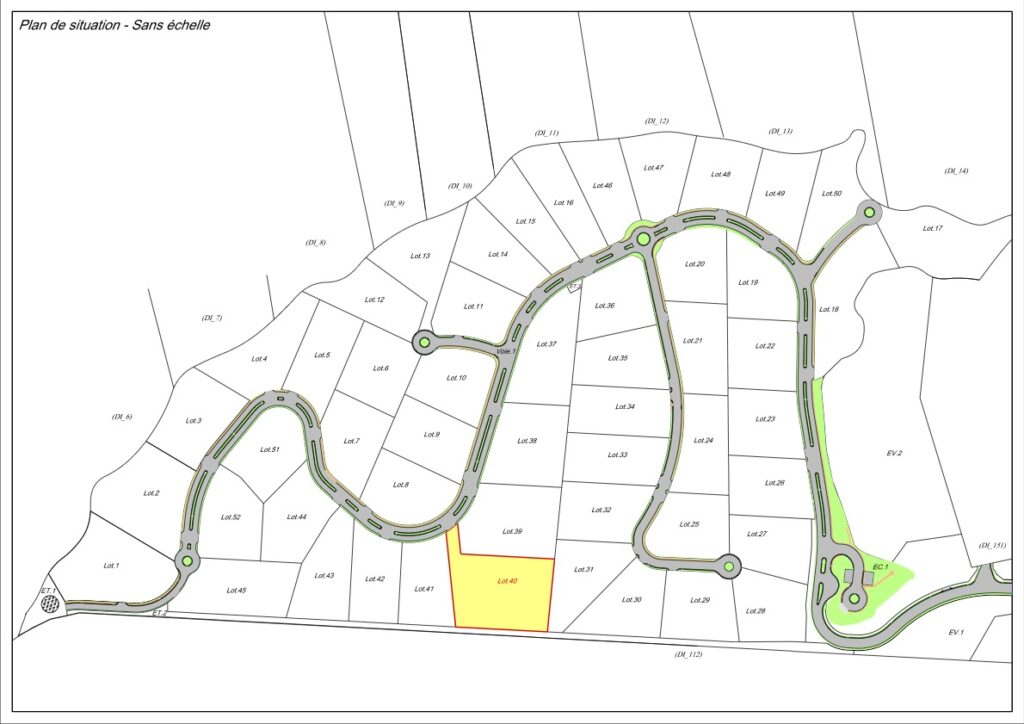
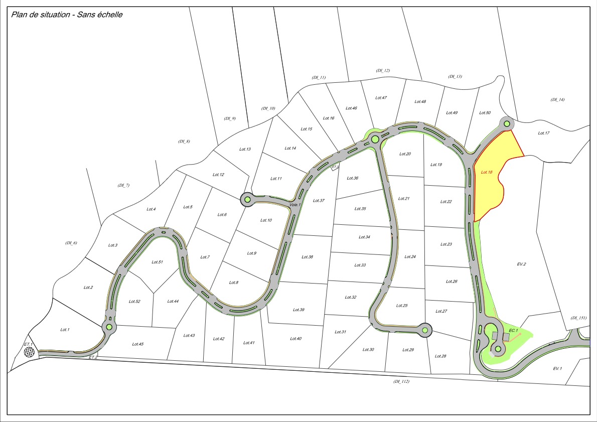
Plan de masse
Contactez-nous pour plus d'informations
Formulaire de contact
Pour toute question ou demande de renseignements, remplissez le formulaire. Nous vous répondrons dans les plus brefs délais.
Par téléphone
Du lundi au jeudi : 7h30 à 12h - 13h30 à 17h
Le vendredi : 8h - 16h






